Optimisation de plan VEFA à Nantes
Anticiper, corriger, améliorer avant la livraison
Acheter un logement sur plan est une belle opportunité… à condition de ne pas subir les limites du plan d’origine.
Installée à Vertou, Intësia Design intervient à Nantes et dans le Sud Loire. Avant la signature ou avant la réunion TMA, cet accompagnement permet d'optimiser votre plan VEFA pour corriger les incohérences, améliorer les usages et gagner en confort au quotidien.
Pour qui ?

Cette prestation s’adresse :
- aux acquéreurs en VEFA qui veulent valider la cohérence d’un plan avant signature,
- à celles et ceux qui souhaitent préparer les TMA sereinement,
- aux primo-accédants qui veulent éviter les erreurs,
- aux investisseurs qui recherchent un plan optimisé pour la location ou la revente.
Vos problématiques
Vous hésitez parce que :
- le plan est difficile à lire ou à comprendre,
- certains espaces semblent mal proportionnés,
- les rangements ne sont pas au bon endroit,
- les circulations ne sont pas fluides,
- vous redoutez de faire des choix irréversibles (cuisine, SDB, cloisons, ouvertures…)
L’optimisation de plan VEFA, en tant que conseil en aménagement intérieur,
permet d’éviter ces erreurs avant qu’il ne soit trop tard.
Ce que vous obtenez
01
Un plan plus lisible et cohérent, adapté à votre mode de vie
02
Des optimisations concrètes (volumes, circulations, rangements)
03
Des recommandations claires pour vos choix TMA
04
Une projection plus réaliste du futur logement, avant même le début du chantier
Notre objectif :
Vous remettre un plan optimisé, réaliste et confortable, pour que votre futur logement neuf soit agréable à vivre dès le premier jour
Comment se passe la prestation ?
1. Échange découverte gratuit (30 min)
Pour comprendre votre projet, vos usages, vos contraintes et votre calendrier notamment la signature ou la réunion TMA
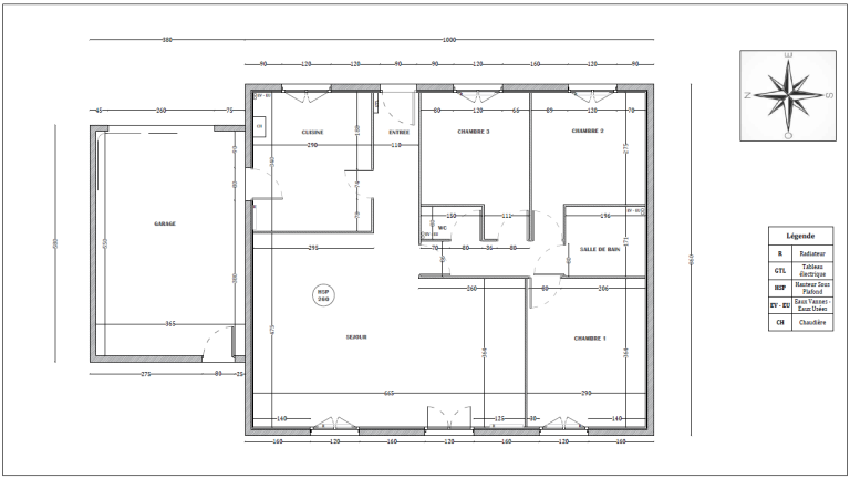
2. Analyse du plan (Phase 1)
Lecture professionnelle du plan : circulation, proportions, rangements, lumière/orientation et cohérence des espaces (cuisine/séjour/SDB/chambres/entrée…)
À l’issue de cette analyse :
- soit le plan est cohérent et la mission s’arrête avec une restitution claire,
- soit une phase d’optimisation est engagée si des améliorations pertinentes sont identifiées (Phase 2)
3. Optimisation (Phase 2 -
si applicable)
Proposition d’une à deux variantes optimisées, accompagnées de recommandations TMA structurées, avec une intégration du mobilier essentiel pour faciliter la projection.
Options / Tarif
Sur devis, selon le niveau de conseils demandés et la complexité du plan.
La phase d’optimisation n'est engagée que si des ajustements pertinents sont identifiés à l'issue de l'analyse.
- Un regard expert sur votre plan : points forts, limites et incohérences
- Des ajustements concrets pour améliorer volumes, circulations et rangements
- Des recommandations claires pour les TMA, au bon moment
- Une approche à la fois fonctionnelle et esthétique, adaptée à votre mode de vie
- Un livrable structuré et compréhensible pour avancer sereinement
Votre plan devient un outil fiable, lisible et adapté à vos usages - pas simplement un document promoteur standardisé.

Pourquoi choisir Intësia Design ?
1 - À quel moment faut-il vous contacter ?
Le plus tôt possible, idéalement avant la signature définitive ou avant la réunion TMA, lorsque les modifications sont encore envisageables.
2 - Que dois-je fournir pour démarrer ?
Le plan VEFA (PDF ou image), la notice descriptive si vous l'avez, ainsi que vos contraintes et intentions (télétravail, rangements, enfants, etc.).
3 - Et si mon plan est déjà cohérent ?
Dans ce cas, la mission peut s’arrêter après l’analyse. Vous repartez avec une lecture claire du plan et des recommandations utiles, sans aller plus loin.
